Planowanie i wykonanie instalacji elektrycznej w domu to jeden z najważniejszych etapów budowy lub remontu. To decyzje, które determinują nie tylko komfort codziennego życia, ale przede wszystkim bezpieczeństwo domowników. Ten kompleksowy poradnik pomoże Ci zrozumieć kluczowe aspekty, uniknąć kosztownych błędów i przygotować Twój dom na przyszłe technologie.
Bezpieczna i funkcjonalna elektryka w domu kluczowe zasady, o których musisz pamiętać
- Staranne planowanie to podstawa: Zawsze zaczynaj od szczegółowego projektu instalacji, uwzględniającego obecne i przyszłe potrzeby.
- Zatrudnij fachowca z uprawnieniami SEP: Tylko doświadczony elektryk zapewni bezpieczeństwo i prawidłowe wykonanie instalacji.
- Podziel instalację na wiele obwodów: To klucz do stabilności zasilania i uniknięcia przeciążeń. Pamiętaj o dedykowanych obwodach dla urządzeń o dużej mocy.
- Zabezpieczenia to priorytet: Rozdzielnica musi zawierać wyłączniki nadmiarowoprądowe, różnicowoprądowe i uziemienie. Rozważ ograniczniki przepięć.
- Myśl o przyszłości: Zaplanuj okablowanie pod fotowoltaikę, systemy smart home, ładowarkę EV czy pompę ciepła już na etapie budowy.

Fundament bezpiecznego domu: Dlaczego warto starannie zaplanować elektrykę?
Jako ekspert w dziedzinie instalacji, zawsze podkreślam, że elektryka to krwiobieg każdego domu. Jej dokładne zaplanowanie na etapie projektu budowlanego lub generalnego remontu jest absolutnie kluczowe. Nie chodzi tylko o wygodę i funkcjonalność, ale przede wszystkim o bezpieczeństwo Twoje i Twojej rodziny. Dobrze przemyślany projekt instalacji elektrycznej to gwarancja, że unikniesz przeciążeń, zwarć i potencjalnie niebezpiecznych sytuacji. To także podstawa do tego, by w przyszłości móc swobodnie rozbudowywać system, dodawać nowe urządzenia czy implementować inteligentne rozwiązania.
Od czego zacząć? Kluczowe decyzje, które musisz podjąć przed wizytą elektryka
Zanim zaprosisz elektryka do współpracy, warto samemu przemyśleć kilka podstawowych kwestii. To pomoże w stworzeniu spójnego projektu i uniknięciu późniejszych zmian, które zawsze są kosztowne i czasochłonne. Oto, co powinieneś rozważyć:
- Liczba i lokalizacja obwodów: Zastanów się, gdzie będziesz potrzebować dużo energii (np. kuchnia, pralnia, garaż) i ile obwodów będzie niezbędnych, aby uniknąć przeciążeń.
- Rozmieszczenie gniazdek i włączników: Przejdź przez każde pomieszczenie i wyobraź sobie, gdzie będą stały meble, gdzie będziesz używać lamp, ładować telefon czy podłączać odkurzacz. Lepiej mieć ich trochę za dużo niż za mało.
- Oświetlenie: Pomyśl o głównym oświetleniu, punktach dodatkowych (np. kinkiety, lampki nocne), a także oświetleniu zewnętrznym.
- Przygotowanie pod przyszłe instalacje: Czy planujesz fotowoltaikę, pompę ciepła, system smart home, a może ładowarkę do samochodu elektrycznego? To idealny moment, aby przewidzieć odpowiednie okablowanie.
- Urządzenia o dużej mocy: Zidentyfikuj sprzęty, które będą wymagały dedykowanych obwodów (np. płyta indukcyjna, piekarnik, pralka).
Kto może wykonać instalację? Rola uprawnień i dlaczego projekt to podstawa
Pamiętaj, że instalacja elektryczna w domu musi być wykonana przez elektryka z odpowiednimi uprawnieniami SEP (Stowarzyszenie Elektryków Polskich). To nie jest kwestia wyboru, lecz wymóg prawny i gwarancja bezpieczeństwa. Taki fachowiec nie tylko prawidłowo położy kable, ale także doradzi w kwestiach technicznych i wystawi niezbędne dokumenty. Projekt instalacji jest absolutną podstawą, ponieważ uwzględnia przyszłe zapotrzebowanie na energię, układ funkcjonalny domu, a także wszystkie normy i przepisy. Bez dobrego projektu, nawet najlepszy elektryk będzie pracował po omacku, a Ty ryzykujesz kosztowne poprawki lub, co gorsza, niebezpieczną instalację.

Bezpieczeństwo przede wszystkim: Kluczowe elementy nowoczesnej instalacji elektrycznej
W dzisiejszych czasach, kiedy nasze domy są naszpikowane elektroniką, bezpieczeństwo instalacji elektrycznej jest ważniejsze niż kiedykolwiek. Nowoczesna instalacja to nie tylko kable i gniazdka, ale przede wszystkim szereg zabezpieczeń, które chronią nas przed porażeniem, pożarem i uszkodzeniem sprzętu. Zawsze powtarzam moim klientom, że na tych elementach nie wolno oszczędzać.
Rozdzielnica sercem domu: Co musi się w niej znaleźć?
Rozdzielnica, często nazywana "skrzynką z bezpiecznikami", to prawdziwe serce Twojej instalacji elektrycznej. To w niej zbiegają się wszystkie obwody i to ona odpowiada za ich ochronę. W każdej nowoczesnej rozdzielnicy powinny znaleźć się kluczowe zabezpieczenia:
- Wyłączniki nadmiarowoprądowe: Chronią przed przeciążeniami i zwarciami.
- Wyłączniki różnicowoprądowe: Obowiązkowe, chronią przed porażeniem prądem.
- Ograniczniki przepięć: Opcjonalne, ale wysoce zalecane, chroniące drogi sprzęt elektroniczny.
Warto również zadbać o to, aby rozdzielnica była odpowiednio duża, z zapasem miejsca na przyszłą rozbudowę to jedna z tych rzeczy, której nie da się łatwo zmienić po fakcie.
Wyłączniki nadprądowe i różnicowoprądowe: Twoja pierwsza linia obrony przed awarią i porażeniem
Wyłączniki nadmiarowoprądowe, potocznie zwane "bezpiecznikami", to Twoja pierwsza linia obrony przed uszkodzeniem instalacji. Ich zadaniem jest automatyczne odcięcie prądu, gdy w obwodzie pojawi się zbyt duże obciążenie (przeciążenie) lub zwarcie. Chronią one przewody przed przegrzaniem i stopieniem, co mogłoby doprowadzić do pożaru.
Z kolei wyłączniki różnicowoprądowe (RCD) to prawdziwi bohaterowie, jeśli chodzi o ochronę życia. Wykrywają one nawet niewielkie upływy prądu, które mogą świadczyć o uszkodzeniu izolacji lub bezpośrednim kontakcie człowieka z prądem. W ułamku sekundy odcinają zasilanie, minimalizując ryzyko porażenia. Ich obecność jest obowiązkowa w każdej nowej instalacji i nie wyobrażam sobie domu bez nich.
Ochrona przed przepięciami: Czy warto inwestować w ochronę drogiego sprzętu RTV/AGD?
Ograniczniki przepięć to element, który często jest pomijany, a szkoda. Chronią one Twój drogi sprzęt elektroniczny (telewizory, komputery, sprzęt AGD) przed uszkodzeniami spowodowanymi nagłymi skokami napięcia w sieci, np. podczas burzy lub awarii w elektrowni. Inwestycja w ograniczniki przepięć to niewielki koszt w porównaniu do wartości sprzętu, który mogą uratować. Moim zdaniem, warto je mieć, zwłaszcza w domach z dużą ilością elektroniki.
Uziemienie: Niewidoczny bohater Twojej instalacji
Uziemienie to niewidoczny, ale niezwykle ważny element każdej instalacji elektrycznej. Jego zadaniem jest odprowadzenie niebezpiecznego prądu upływowego do ziemi, chroniąc tym samym przed porażeniem. Każdy dom powinien posiadać uziom, najlepiej fundamentowy, wykonany na etapie budowy. Jest to najbardziej skuteczna forma uziemienia, która zapewnia trwałą i niezawodną ochronę. Uziom fundamentowy to po prostu stalowa bednarka zatopiona w fundamencie, połączona z główną szyną uziemiającą w rozdzielnicy.
Stabilne zasilanie: Jak prawidłowo podzielić instalację na obwody?
Jedną z kluczowych zasad projektowania bezpiecznej i funkcjonalnej instalacji elektrycznej jest jej podział na wiele niezależnych obwodów. To pozwala uniknąć przeciążenia całej instalacji w przypadku awarii jednego urządzenia i zapewnia stabilność zasilania w całym domu. Zawsze doradzam moim klientom, aby nie oszczędzali na liczbie obwodów to inwestycja w komfort i bezpieczeństwo.
Złota zasada: Ile gniazdek i lamp na jednym obwodzie?
Aby zapewnić bezpieczeństwo i prawidłowe działanie instalacji, należy przestrzegać pewnych wytycznych. Zgodnie z dobrymi praktykami i normami, jeden obwód nie powinien zasilać więcej niż 10 gniazdek wtykowych lub 20 punktów oświetleniowych. Przekroje przewodów również mają znaczenie: dla obwodów oświetleniowych stosuje się przewody miedziane o przekroju minimum 1,5 mm², a dla gniazdek wtykowych 2,5 mm². Pamiętaj, że to są wartości minimalne, a w niektórych przypadkach, np. dla dłuższych obwodów, warto zastosować grubsze przewody.
AGD o dużej mocy: Które sprzęty bezwzględnie wymagają własnego zasilania?
Urządzenia AGD o dużej mocy, czyli takie, których pobór przekracza 2 kW, bezwzględnie wymagają własnych, dedykowanych obwodów. Podłączenie ich do wspólnego obwodu grozi przeciążeniem i wybijaniem bezpieczników. Do tej kategorii zaliczamy:
- Płyta indukcyjna
- Piekarnik elektryczny
- Pralka
- Zmywarka
- Bojler elektryczny / podgrzewacz wody
- Kocioł elektryczny
- Klimatyzacja
Dedykowany obwód oznacza osobny przewód poprowadzony bezpośrednio z rozdzielnicy do danego urządzenia, zabezpieczony własnym wyłącznikiem nadmiarowoprądowym.
Lodówka i piec na specjalnych prawach: Dlaczego warto wydzielić dla nich osobne obwody?
Oprócz urządzeń o dużej mocy, zawsze rekomenduję wydzielenie osobnych obwodów dla lodówki i kotła grzewczego (np. gazowego, na pellet). Dlaczego? Ponieważ są to urządzenia, których ciągła praca jest kluczowa dla funkcjonowania domu. Jeśli dojdzie do awarii na innym obwodzie i wyłączy się "bezpiecznik", lodówka nadal będzie działać, chroniąc Twoje jedzenie, a piec będzie ogrzewał dom. To proste rozwiązanie, które znacząco zwiększa komfort i bezpieczeństwo.
Czym jest "siła" i kiedy jest niezbędna w domu jednorodzinnym?
Pojęcie "siła" odnosi się do zasilania trójfazowego (400 V), w przeciwieństwie do standardowego zasilania jednofazowego (230 V). W domu jednorodzinnym "siła" jest niezbędna przede wszystkim dla płyty indukcyjnej, zwłaszcza tych o większej mocy. Płyty indukcyjne często wymagają zasilania trójfazowego, co zapewnia im stabilną pracę i pełną moc. W takim przypadku konieczne jest poprowadzenie przewodu pięciożyłowego, np. o przekroju 5x4 mm², bezpośrednio z rozdzielnicy do miejsca montażu płyty.

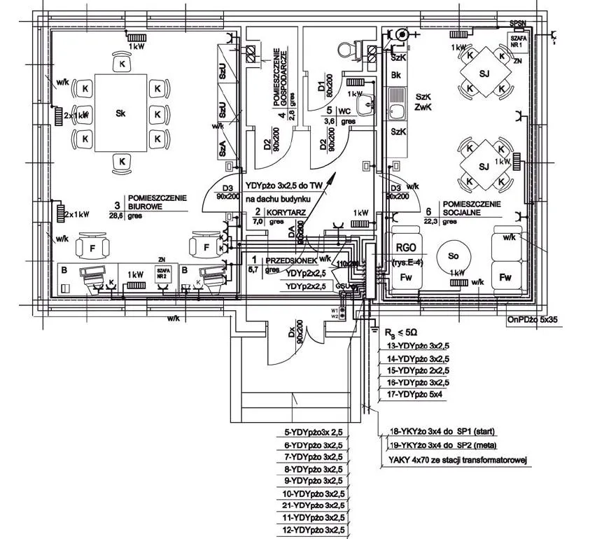
Rozmieszczenie punktów elektrycznych: Praktyczny przewodnik po pomieszczeniach
Precyzyjne zaplanowanie rozmieszczenia gniazdek, włączników i punktów świetlnych to jeden z najważniejszych etapów projektowania instalacji. To od tego zależy, jak funkcjonalny i wygodny będzie Twój dom na co dzień. Warto poświęcić temu czas i dokładnie przemyśleć każdą strefę, dostosowując ją do specyfiki i przeznaczenia pomieszczenia.
Kuchnia: Centrum dowodzenia energią
Kuchnia to bez wątpienia najbardziej wymagające pomieszczenie pod względem instalacji elektrycznej. To tutaj koncentruje się najwięcej urządzeń o dużej mocy, dlatego planowanie musi być szczególnie staranne.
Ile gniazdek nad blatem to nie za dużo? Praktyczne rozmieszczenie
Nad blatem roboczym gniazdka są na wagę złota. Moja rada: planuj je co 1,5-2 metry. Pamiętaj, że będziesz używać czajnika, tostera, blendera, ekspresu do kawy, a może i innych drobnych sprzętów AGD. Lepiej mieć ich za dużo niż za mało, bo przedłużacze na blacie to nie tylko bałagan, ale i potencjalne ryzyko.
Planowanie pod AGD: Gdzie umieścić gniazda do lodówki, zmywarki i piekarnika?
Dla każdego dużego urządzenia AGD, które wymaga dedykowanego obwodu, musisz zaplanować osobne gniazdo:
- Lodówka: Gniazdo zazwyczaj umieszcza się za lodówką, na wysokości około 30-50 cm od podłogi.
- Zmywarka: Gniazdo umieść w szafce obok zmywarki (nie bezpośrednio za nią, aby nie kolidowało z wężami) lub pod zlewem, na wysokości około 30-50 cm.
- Piekarnik: Podobnie jak zmywarka, gniazdo powinno być dostępne, np. w szafce obok lub pod piekarnikiem, na wysokości około 30-50 cm.
Pamiętaj, że wszystkie te gniazda powinny być na dedykowanych obwodach!
Zasilanie płyty indukcyjnej: Wszystko, co musisz wiedzieć o instalacji trójfazowej
Jak już wspomniałem, płyta indukcyjna to często jedyne urządzenie w domu wymagające zasilania trójfazowego, czyli tzw. "siły". Zapewnia to jej pełną moc i stabilną pracę. Musisz przewidzieć dla niej przewód pięciożyłowy o przekroju 5x4 mm², poprowadzony bezpośrednio z rozdzielnicy. Miejsce wyprowadzenia kabla powinno znajdować się za płytą, na wysokości około 60-70 cm od podłogi, aby był łatwo dostępny do podłączenia.
Łazienka: Strefy szczególnego ryzyka
Łazienka to pomieszczenie o podwyższonym ryzyku ze względu na obecność wody, dlatego planowanie instalacji elektrycznej musi być tu szczególnie ostrożne i zgodne z normami.
Bezpieczne odległości: Gdzie można, a gdzie nie wolno montować gniazdek i włączników?
W łazience obowiązują tzw. strefy bezpieczeństwa, które określają minimalne odległości dla urządzeń elektrycznych od źródeł wody (wanny, prysznica, umywalki). Ogólna zasada to minimum 60 cm od krawędzi wanny lub brodzika dla gniazdek i włączników. W strefach bliżej wody (np. nad wanną) montaż jakichkolwiek urządzeń elektrycznych jest zabroniony lub wymaga specjalnych rozwiązań o bardzo wysokiej klasie szczelności.
Gniazdka bryzgoszczelne (IP44): Czym są i dlaczego są obowiązkowe?
W łazience, wszystkie gniazdka i włączniki muszą posiadać podwyższoną klasę szczelności, czyli być bryzgoszczelne (min. IP44). Oznacza to, że są odporne na zachlapanie wodą. To absolutny wymóg, który chroni przed zwarciem i porażeniem w wilgotnym środowisku. Nie oszczędzaj na tym elemencie!
Salon i sypialnia: Komfort i multimedia
W salonie i sypialni kluczowe jest zapewnienie komfortu i funkcjonalności, zwłaszcza w kontekście urządzeń multimedialnych i oświetlenia.
Kącik RTV bez plątaniny kabli: Jak zaplanować gniazda za telewizorem?
W strefie RTV, gdzie zazwyczaj stoi telewizor, dekoder, konsola, soundbar czy router, potrzeba naprawdę dużo gniazdek. Moja rekomendacja to co najmniej 4-5 gniazdek elektrycznych, a do tego gniazda antenowe (TV-SAT) i gniazda sieciowe (LAN). Umieść je na wysokości około 100-120 cm od podłogi, tak aby były ukryte za telewizorem wiszącym lub szafką RTV. To pozwoli uniknąć nieestetycznej plątaniny kabli.
Gniazdka przy łóżku i biurku: Planowanie z myślą o wygodzie
W sypialni, przy łóżku, warto zaplanować gniazdka po obu stronach idealne do ładowania telefonu, podłączenia lampki nocnej czy budzika. Wysokość około 60-70 cm od podłogi będzie optymalna. Jeśli masz biurko, zaplanuj tam co najmniej 2-3 gniazdka plus gniazdo LAN, aby podłączyć komputer, monitor i inne akcesoria.
Sterowanie oświetleniem: Kiedy przydadzą się włączniki schodowe i krzyżowe?
Włączniki schodowe i krzyżowe to proste, ale bardzo praktyczne rozwiązania, które znacząco zwiększają komfort użytkowania.
- Włączniki schodowe: Pozwalają na zapalanie i gaszenie światła z dwóch różnych miejsc, np. na dole i na górze schodów, lub na początku i końcu długiego korytarza.
- Włączniki krzyżowe: Umożliwiają sterowanie jednym punktem świetlnym z trzech lub więcej miejsc, co jest przydatne w bardzo długich korytarzach lub dużych pomieszczeniach z wieloma wejściami.
Zawsze zachęcam do ich stosowania tam, gdzie jest to logiczne i wygodne.
Garaż, kotłownia i otoczenie domu
Nie zapominajmy o pomieszczeniach gospodarczych i otoczeniu domu, które również wymagają przemyślanej instalacji elektrycznej.
Jakie gniazda zaplanować w garażu i warsztacie?
W garażu i warsztacie z pewnością będziesz potrzebować solidnych gniazd. Planuj co najmniej 3-4 gniazdka 230 V, rozmieszczone w różnych miejscach, na wysokości około 100-120 cm od podłogi. Jeśli planujesz używać narzędzi o większej mocy (np. spawarka, piła stołowa), rozważ również gniazdo trójfazowe (tzw. "siłę"). Pamiętaj o dobrym oświetleniu, najlepiej na kilku obwodach, aby móc doświetlić konkretne strefy pracy.
Oświetlenie zewnętrzne i zasilanie bramy: O czym nie można zapomnieć?
Na zewnątrz domu kluczowe jest zaplanowanie oświetlenia wejścia, podjazdu, tarasu czy ogrodu. Pamiętaj o gniazdkach zewnętrznych (bryzgoszczelnych IP44), które przydadzą się do podłączenia kosiarki, myjki ciśnieniowej czy lampek świątecznych. Niezbędne jest również zasilanie bramy wjazdowej i garażowej, a także domofonu lub wideodomofonu. Wszystkie te punkty powinny być zabezpieczone osobnymi obwodami i, w przypadku oświetlenia zewnętrznego, często sterowane zmierzchowo lub czujnikami ruchu.
Najczęstsze błędy w elektryce domowej: Jak ich uniknąć?
Nawet przy najlepszych chęciach, podczas planowania i wykonywania instalacji elektrycznej można popełnić błędy. Moje doświadczenie pokazuje, że niektóre z nich powtarzają się nagminnie. Znając je, możesz ich świadomie uniknąć, oszczędzając sobie nerwów, czasu i pieniędzy.
- Zbyt mała liczba gniazdek i obwodów: To najczęstszy błąd. Ludzie często nie doceniają, ile urządzeń będą używać. Skutek? Przedłużacze, rozgałęźniki i przeciążone obwody. Konsekwencje: Niska funkcjonalność, ryzyko pożaru, wybijanie bezpieczników.
- Niewłaściwy przekrój przewodów: Zbyt cienkie przewody do zbyt dużego obciążenia to prosta droga do przegrzewania się instalacji. Konsekwencje: Ryzyko pożaru, uszkodzenie izolacji, spadki napięcia.
- Układanie kabli po skosie (zamiast pionowo i poziomo): Kable zawsze powinny być prowadzone pionowo lub poziomo od gniazdka/włącznika. Układanie ich po skosie utrudnia późniejsze prace (np. wiercenie w ścianie) i lokalizację. Konsekwencje: Trudności w lokalizacji, ryzyko przewiercenia kabla.
- Pominięcie okablowania niskoprądowego (LAN, TV-SAT, alarm, monitoring): W dobie internetu i inteligentnych rozwiązań, brak przewodów sieciowych (LAN) czy antenowych (TV-SAT) to poważne niedopatrzenie. Konsekwencje: Konieczność kucia ścian lub używania niewydajnych rozwiązań bezprzewodowych.
- Zbyt mała skrzynka rozdzielcza: Rozdzielnica powinna mieć zapas miejsca na przyszłe moduły (np. do fotowoltaiki, smart home). Konsekwencje: Brak możliwości rozbudowy instalacji bez wymiany całej rozdzielnicy.
- Brak uziemienia: Absolutnie krytyczny błąd, który zagraża życiu. Konsekwencje: Brak ochrony przed porażeniem prądem.

Przeczytaj również: Jak zostać elektrykiem bez szkoły? Krok po kroku do uprawnień SEP
Elektryka przyszłości: Przygotuj instalację na nowe technologie
Budując lub remontując dom, warto patrzeć w przyszłość. Technologie rozwijają się w zawrotnym tempie, a my chcemy, aby nasz dom był gotowy na nadchodzące zmiany. Przewidzenie odpowiedniego okablowania na etapie budowy to niewielki koszt w porównaniu do późniejszych przeróbek. Zawsze doradzam moim klientom, aby myśleli perspektywicznie.
Gotowość na słońce: Jakie przewody poprowadzić pod instalację fotowoltaiczną?
Instalacje fotowoltaiczne stają się standardem. Aby przygotować dom na ich montaż, warto już na etapie budowy poprowadzić odpowiednie okablowanie. Z rozdzielnicy do miejsca planowanego montażu falownika (np. na poddaszu, w kotłowni) należy poprowadzić przewód zasilający o odpowiednim przekroju (np. 5x6 mm² lub grubszy) oraz skrętkę komputerową (UTP/FTP) do komunikacji falownika z siecią. To znacznie ułatwi i obniży koszt późniejszego montażu paneli.
Twój dom staje się smart: Okablowanie pod inteligentne sterowanie
Systemy inteligentnego domu (smart home) to już nie luksus, a coraz częściej standard. Jeśli myślisz o automatyzacji oświetlenia, rolet, ogrzewania czy alarmu, warto przewidzieć odpowiednie okablowanie. Oprócz standardowej instalacji elektrycznej, często potrzebne są dodatkowe przewody komunikacyjne (np. skrętka) do sterowania poszczególnymi elementami. Warto również pomyśleć o okablowaniu pod system alarmowy i monitoring, co zapewni większe bezpieczeństwo i elastyczność w wyborze rozwiązań.
Elektromobilność w zasięgu ręki: Przygotowanie miejsca pod ładowarkę do samochodu elektrycznego
Samochody elektryczne to przyszłość motoryzacji. Jeśli planujesz zakup takiego pojazdu, warto już teraz przygotować instalację w garażu pod przyszłą ładowarkę (wallbox). Oznacza to poprowadzenie dedykowanego obwodu o odpowiednio dużym przekroju (np. 3x6 mm² lub 5x6 mm² dla ładowarek trójfazowych) bezpośrednio z rozdzielnicy do miejsca montażu ładowarki. To zapewni szybkie i bezpieczne ładowanie Twojego pojazdu.
Zasilanie dla pompy ciepła: Co trzeba przewidzieć na etapie instalacji?
Pompy ciepła to efektywne i ekologiczne źródło ogrzewania. Wymagają one jednak odpowiedniego zasilania. Na etapie instalacji elektrycznej należy przewidzieć dla pompy ciepła dedykowany obwód o odpowiednim przekroju przewodów, często zasilany trójfazowo, w zależności od mocy urządzenia. Warto skonsultować to z projektantem pompy ciepła, aby zapewnić jej optymalne warunki pracy i uniknąć późniejszych problemów z zasilaniem.
